Nếu bạn muốn biến dự án xây dựng mơ ước của mình thành hiện thực, trước tiên bạn cần biến ý tưởng của mình thành một thiết kế. Các kiến trúc sư gọi giai đoạn đó là Schematic Design. Nó diễn ra sau giai đoạn tiền thiết kế, trong đó kiến trúc sư và chủ sở hữu xây dựng mô tả dự án bằng một văn bản. Vậy Schematic Design là gì, mời bạn đọc tìm hiểu các nội dung mà chúng tôi sẽ cung cấp thông qua bài viết dưới đây.
Schematic Design là gì?
Hiểu theo dịch nghĩa từ điển Việt - Anh, Schematic Design là thiết kế sơ đồ.
Giai đoạn thiết kế sơ đồ là phần đầu tiên của quá trình thiết kế. Mục tiêu chung của quá trình thiết kế là tạo ra một thiết kế hoàn chỉnh cho dự án. Điều này bao gồm tất cả các cân nhắc về kỹ thuật, cũng như các vật liệu, thiết bị, hệ thống và không gian cụ thể có trong dự án. Vào cuối giai đoạn thiết kế, thường được gọi là giai đoạn lập hồ sơ xây dựng, tất cả các vấn đề liên quan đến kết cấu và thiết kế cần được tính đến.
Giai đoạn thiết kế sơ đồ là phần đầu tiên của quá trình này. Thông thường, việc sản xuất một thiết kế sơ đồ diễn ra ngay sau khi một dự án được bắt đầu. Hầu hết các dự án xây dựng bắt đầu với việc chủ sở hữu giữ lại các dịch vụ của người quản lý dự án xây dựng, người này sẽ bắt đầu bằng việc tiến hành đánh giá tính khả thi của dự án để xác định khả năng tồn tại của nó. Nói một cách tổng thể, một khi một dự án được tìm thấy là khả thi, một kiến trúc sư sẽ bắt đầu quá trình phác thảo một thiết kế sơ đồ.

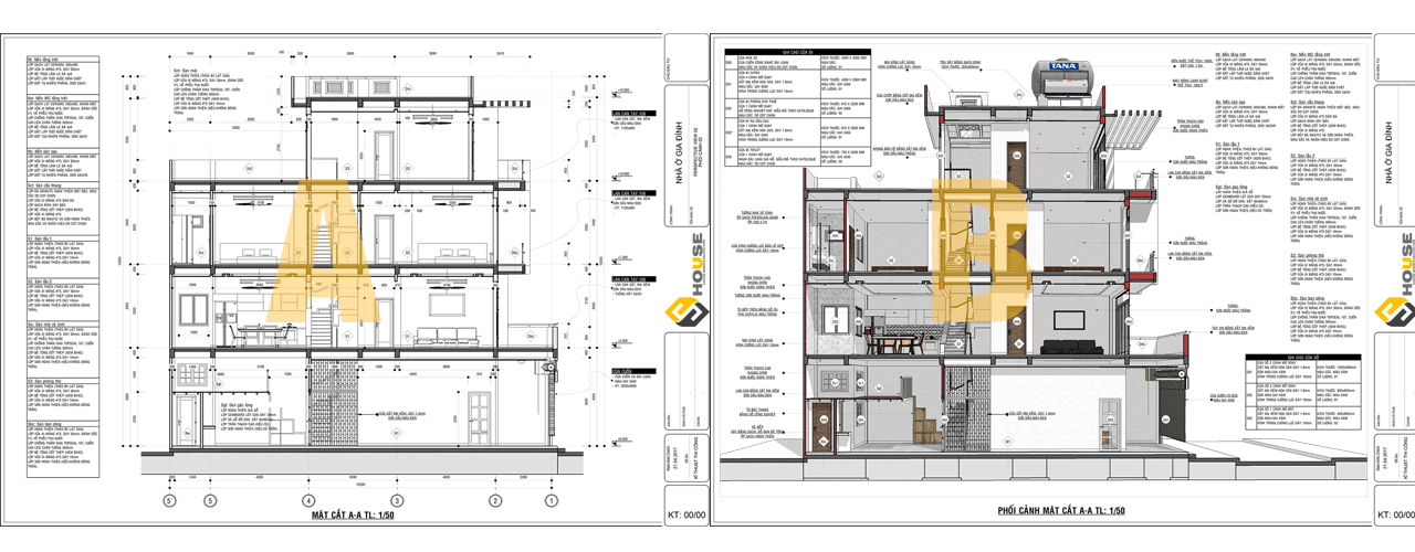
Ví dụ minh hoạt về Schematic Design
Sự khác biệt giữa Design Development (Phát triển thiết kế) và Schematic Design (Thiết kế sơ đồ) là gì?
Phát triển thiết kế là giai đoạn thứ ba trong cả cấu trúc dự án. Trong giai đoạn phát triển thiết kế, các kiến trúc sư sẽ tinh chỉnh các bản vẽ mà họ đã thống nhất với khách hàng trong quá trình thiết kế sơ đồ. Ví dụ: độ cao nội thất, các phần tường, sơ đồ trần phản chiếu và thông tin về cửa sổ, cửa ra vào và đồ đạc trong nhà.
Ước tính chi phí có thể được thay đổi trong quá trình phát triển thiết kế. Khách hàng vẫn tham gia vào giai đoạn này của dự án và khi kết thúc dự án nên có một ý tưởng rõ ràng về việc tòa nhà của họ sẽ trông như thế nào trong ba chiều, cả bên trong, bên ngoài lẫn chiều sâu.
Mục tiêu của Schematic Design là gì
Mục tiêu của giai đoạn thiết kế sơ đồ là giải quyết các vấn đề liên quan đến thiết kế tổng thể cho dự án. Mọi dự án xây dựng đều bắt đầu từ một ý tưởng. Thông thường, một chủ sở hữu có một ý tưởng cho dự án mà họ muốn được xây dựng. Chuyển đổi từ một ý tưởng đơn giản sang một khái niệm thiết kế khả thi và thực tế là mục tiêu trung tâm của quá trình thiết kế sơ đồ.
Vào cuối quá trình thiết kế sơ đồ, hai khía cạnh quan trọng của dự án mà Schematic Design không được bỏ qua:
- Đầu tiên là quy mô của chính dự án. Trong giai đoạn sơ đồ, chủ sở hữu và kiến trúc sư sẽ làm việc cùng nhau để hoàn thành mục tiêu của dự án và kết quả cuối cùng được hình dung.
- Sau đó, kiến trúc sư sẽ đưa ra một số bản phác thảo cho các thiết kế dự án tiềm năng trước khi hoàn thành. Những bản phác thảo này có thể sẽ có những biến thể ảnh hưởng đến quy mô của dự án. Nói cách khác, mỗi thiết kế khác nhau sẽ sử dụng địa điểm dự án và không gian có sẵn theo những cách độc đáo khác nhau. Điều này nhất thiết sẽ có tác động đến quy mô của chính dự án. Sau khi thiết kế sơ đồ cuối cùng được hoàn thành, quy mô của dự án trong tương lai phải được xác định.

Giai đoạn thiết kế sơ đồ có vai trò quan trọng trong dự án
Trở thành chuyên gia Sketchup bằng cách đăng ký học online qua video ngay. Khóa học sẽ giúp bạn nhanh chóng thành thạo công cụ thiết kế 3D của SketchUp, nắm được tư duy thiết kế mô hình 3D nội thất, xây dựng, hoàn thiện bản vẽ 3D từ phác thảo ý tưởng đến sản phẩm hoàn chỉnh,...
Quy trình Schematic Design
Sau khi giải thích thuật ngữ Schematic Design là gì, Unica tiếp tục mời bạn đọc tham khảo các thông tin liên quan đến một quy trình thiết kế sơ đồ.
Mục tiêu tổng quát của thiết kế sơ đồ là để khách hàng có trong tay một thiết kế mà họ hài lòng, nhưng đây không phải là một cuộc hành trình đơn giản từ A đến B. Thiết kế sơ đồ là một quá trình hợp tác trong đó khách hàng tham gia rất nhiều. Ban đầu, kiến trúc sư đưa ra một số phương án khả thi cho tòa nhà, dựa trên đầu vào từ giai đoạn lập chiến lược.
Khách hàng đánh giá những điều này, chọn một thiết kế để tiếp tục hoặc yêu cầu các tùy chọn khác để đáp ứng tốt hơn nhu cầu của họ. Ngay cả khi khách hàng và kiến trúc sư đã quyết định thiết kế cơ bản, nó có thể sẽ trải qua một số lần lặp lại khi các ý tưởng được hoàn thiện.
Nói tóm lại, quá trình thiết kế sơ đồ là một quá trình qua lại với rất nhiều thương lượng. Điều này có thể trở nên khó khăn, ví dụ: nếu khách hàng muốn thay đổi ý định thiết kế nhằm đáp ứng với các ưu tiên của họ, hoặc nếu một kiến trúc sư không phản ứng tốt với việc từ chối ý tưởng của khách hàng. Tuy nhiên, khi khách hàng và kiến trúc sư kết hợp ăn ý và giao tiếp hiệu quả, thiết kế sơ đồ có thể là một cuộc phiêu lưu sáng tạo đầy thú vị khi dự án được hoàn thiện !

Hoàn thiện bản vẽ
Như vậy thông qua bài viết trên đây, chúng tôi đã cùng các bạn tìm hiểu Schematic Design là gì và quy trình của thiết kế sơ đồ dự án. Cảm ơn bạn đọc đã quan tâm theo dõi.
Chúc các bạn thành công !
>> Toplist 5 phần mềm thiết kế nhà 3D chuyên nghiệp

